🏡 Προς Πώληση – Δύο Αυτόνομες Μεζονέτες στην Πυλαία Θεσσαλονίκης
🔹 Υπό κατασκευή | Ενεργειακή Κλάση Α++ | Παράδοση: Σεπτέμβριος 2026
💰 Τιμή: 394.000 €
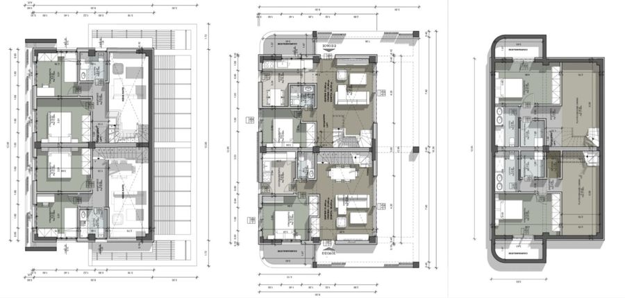
🏠 Γενικά Χαρακτηριστικά:
Δύο αυτόνομες μεζονέτες (ισόγειο, 1ος όροφος & υπόγειο)
Καθαρό εμβαδόν: 132,10 τ.μ.
Αριστερή μεζονέτα: αυλή 75 τ.μ.
Δεξιά μεζονέτα: αυλή 125 τ.μ.
Αποθήκη αποκλειστικής χρήσης
Στεγασμένη υπαίθρια θέση στάθμευσης, με παροχή φόρτισης για ηλεκτρικό όχημα
Δυνατότητα προσθήκης ασανσέρ σε κάθε μεζονέτα (με επιπλέον κόστος)
⚡ Ενεργειακά – Τεχνολογία – Άνεση:
Ενεργειακή Κλάση Α++
Ενδοδαπέδια θέρμανση με αντλία θερμότητας
Υβριδικά φωτοβολταϊκά πάνελ με σύστημα net metering
Smart θερμοστάτης (απομακρυσμένος χειρισμός)
Θερμοπρόσοψη με διογκωμένη πολυστερίνη & λιθοσώματα
Απόλυτη ενεργειακή αυτονομία (παράγει το ρεύμα που καταναλώνει)
🛋️ Εσωτερικός Εξοπλισμός:
Ιταλική κουζίνα
Ντουλάπες σε κάθε υπνοδωμάτιο
Εντοιχιζόμενα καζανάκια – κρεμαστές λεκάνες
Προεγκατάσταση συναγερμού και κλιματισμού
Smart θυροτηλεόραση
Δίκτυο Ethernet & οπτικές ίνες σε όλους τους χώρους
Σπατουλαριστοί τοίχοι
Ηλεκτρολογικός εξοπλισμός Legrand
Σύστημα πυρανίχνευσης
👨👩👧👦 Επιπλέον χώροι:
Χώρος playroom, ξενώνας & laundry
Αποθήκες στο υπόγειο
Πρόσβαση & πρόβλεψη για ΑμεΑ
(μελέτη εξωτερικών και εσωτερικών χώρων, δυνατότητα ασανσέρ με πρόσβαση και στο υπόγειο)
📍 Το έργο περιλαμβάνει και πολυκατοικία με:
2 αυτόνομες ισόγειες μεζονέτες με κήπο
2 διαμερίσματα δευτέρου ορόφου
2 μεζονέτες 3ου & 4ου ορόφου
📌 Τα παραπάνω στοιχεία είναι ενδεικτικά και μπορεί να τροποποιηθούν κατά την εξέλιξη του έργου.
Κωδικός ακινήτου: 62
📞 Για περισσότερες πληροφορίες και ραντεβού, επικοινωνήστε μαζί μας για αναλυτική παρουσίαση!
6948 646823 (Δευ–Παρ 09:00–18:00, διαθέσιμο και μέσω Viber)
2310 629414 (Δευ–Παρ 09:00–17:00)
💡 Υπηρεσίες γραφείου μας
Το λογιστικό – μεσιτικό γραφείο Γαβριηλίδης Νικόλαος & Υιοί σας παρέχει:
*Δωρεάν διαδικασία σύνδεσης ρεύματος και φυσικού αερίου, χωρίς φυσική παρουσία.
*Πρόταση διακοσμητή και τεχνικής εταιρείας για ανακαίνιση ή διαμόρφωση χώρου.
ℹ️ Οι πληροφορίες και τα χαρακτηριστικά των ακινήτων καταχωρούνται βάσει στοιχείων που μας παρέχει ο εκάστοτε εντολέας.
📌 Η ένδειξη στο χάρτη είναι ενδεικτική και δεν αντιστοιχεί στην ακριβή διεύθυνση του ακινήτου.
📑 Για υπόδειξη ακινήτου απαιτείται η επίδειξη αστυνομικής ταυτότητας (άρθρο 34, Ν. 4314/2014).
🔎 Δείτε όλα τα ακίνητά μας στο:
👉 www.gavriilidisrealestate.gr
                
                

































